智能型金屬管轉子流量計采用獨立概念設計的測量管指示器,可選擇不銹鋼、哈氏合金、鈦材、PTFE材料測量系統,低壓力損失設計.智能型金屬管轉子流量計磁性耦合結構確保數據傳輸、信號更加穩定。保溫或伴熱夾套,垂直、水平、各種安裝方式更適合不同使用場合。智能型金屬管轉子流量計適用于小口徑和低流速介質流量測量,對于直管段要求不高。
較寬的流量比10:1
雙行大液晶顯示,可選現場瞬時/累計流量顯示,可帶背光
全金屬結構,適于高溫、高壓和強腐蝕性介質
可用于易燃、易爆危險場合
選二線制、電池、交流供電方式
帶有數據恢復,數據備份及掉電保護功能
|
耐腐型通徑
DN(mm)
|
普通型通徑
DN(mm)
|
流 量 范 圍
|
最大壓力損失
|
|
空氣m3/h 20℃
0.101325 MPa
|
水L/h 20℃
|
空氣(kPa)
|
水(kPa)
|
|
15
|
15
|
0.07~0.7
|
2.5~25
|
7.1
|
6.5
|
|
0.11~1.1
|
4.0~40
|
7.2
|
6.5
|
|
0.18~1.8
|
6.0~60
|
7.3
|
6.6
|
|
0.28~2.8
|
10~100
|
7.5
|
6.6
|
|
0.40~4.0
|
16~160
|
8.0
|
6.8
|
|
0.70~7.0
|
25~250
|
10.8
|
7.2
|
|
1.00~10
|
40~400
|
10
|
8.6
|
|
25
|
1.60~16
|
60~600
|
14
|
11.1
|
|
25
|
3.00~30
|
100~1000
|
7.7
|
7
|
|
4.50~45
|
160~1600
|
8.8
|
8
|
|
7.00~70
|
250~2500
|
12
|
10.8
|
|
50
|
11~110
|
400~4000
|
19
|
15.8
|
|
50
|
18~180
|
600~6000
|
8.6
|
8.1
|
|
25~250
|
1000~10000
|
10.4
|
11
|
|
80
|
40~400
|
1600~16000
|
15.6
|
17
|
|
80
|
75~750
|
2500~25000
|
|
8.1
|
|
100
|
100~1000
|
4000~40000
|
|
9.5
|
|
100
|
150~1500
|
6000~60000
|
|
10
|
|
150
|
125
|
|
8000~80000
|
|
|
|
|
|
100000~1000000
|
|
|
|
|
150
|
|
15000~150000
|
|
|
轉換器形式

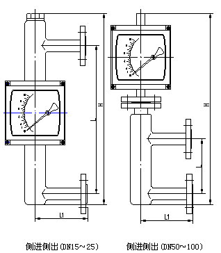
外形及安裝尺寸











夾套連接法蘭標準為:GB/T9119 PN1.6 DN15
安裝形式
流量計垂直安裝,流量計中心線與鉛垂線的夾角不超過5°,在流量計的上游須保證五倍公稱通徑的入口直管段,下游保證250mm出口直管段。如果介質中含有固體雜質,應在流量計上游加裝過濾器;如果介質中含有鐵磁性物質,應在流量計的上游安裝磁過濾器。為了便于維護和清洗且不影響生產,建議安裝旁通管路。為了避免由于管道引起的流量計變形,安裝法蘭必須與儀表同軸并且相互平行,并適當地支撐管道以避免管道振動和減小流量計的軸向負荷,測量系統中控制閥應安裝在流量計的下游。用于測量氣體時,應保證管道壓力不小于5倍流量計的壓力損失,以使浮子穩定工作。


附件
可為用戶提供前后直管段、配對法蘭、磁過濾器、氣體阻尼裝置等附件。如果介質中含有鐵磁性顆粒,就應在流量計入口處安裝磁過濾器。磁過濾器中裝有以螺旋方式排列的磁棒,以最大限度地減小壓力損失,每個磁棒均由PTFE聚四氟乙稀包裹,防止介質的腐蝕。
磁過濾器的結構見圖:

磁過濾器結構 襯PTFE磁過濾器結構
限位開關報警裝置
限位開關報警裝置在指示器中的部分由感應頭、鋁片等組成,感應頭被安裝在能被指針軸上的鋁片切割的位置,通過改變感應頭的位置可以任意設定限位值。感應頭輸出信號給金屬轉子流量指示控制儀。
技術參數
1.供電電源:24V AC±10%
2.功耗:≤3W
3.工作溫度:-25℃~60℃
4.輸出觸點容量:24VAC 3A
接線圖


報警點的改變須打開前蓋,松開刻度盤上的小指針的螺釘,調整到需要的位置后,再將螺釘緊固,最后裝好前蓋。
設計選用及訂貨須知
1.根據測量流體是氣體或液體,正確遠用氣體或液體金屬管浮子流量計。
2.被測流體無腐蝕性選用普通型,有腐蝕性選用耐腐型。
3.訂貨時請注明被測介質名稱、流量、管道通徑及工作壓力、溫度、密度、粘度等情況。我公司根據用戶提出的密度等進行刻度修正,制作特殊的流量標尺。
4.根據被測流體的測量范圍、應用場合等選擇合適型號的規格品種。如有特殊要求的流量計,請來公司或來函與銷售部聯系。
智能型金屬管浮子流量計測量部分特點:
1、堅固的全金屬結構設計型浮子流量計
2、采用獨立概念設計的測量管指示器
3、可選擇不銹鋼、哈氏合金、鈦材、PTFE材料測量系統
4、低壓力損失設計
5、短行程、小型結構設計、儀表總高度250
6、磁性耦合結構確保數據傳輸、信號更加穩定
7、保溫或伴熱夾套
8、垂直、水平、各種安裝方式更適合不同使用場合
9、適用于小口徑和低流速介質流量測量
10、工作可靠,維護量小,壽命長
11、對于直管段要求不高
12、較寬的流量比10:1
13、雙行大液晶顯示,可選現場瞬時/累計流量顯示,可帶背光
14、單軸靈敏指示
15、非接觸磁耦合傳動
16、全金屬結構,適于高溫、高壓和強腐蝕性介質
17、可用于易燃、易爆危險場合
18、選二線制、電池、交流供電方式
19、多參數標定功能
20、帶有數據恢復,數據備份及掉電保護功能
◇測量范圍:水(20℃)1-200000 l/h
空氣(20℃,0.1013MPa)0.03-4000m3/h;參見流量表,特殊流量可訂制
◇量 程 比:標準型10:1
◇精 度:標準型1.0級;特殊型0.5級
◇壓力等級:標準型:DN15-DN50 4.0MPa DN80-DN200 1.6MPa
特殊型:DN15-DN50 25MPa DN80-DN200 16MPa
夾套的壓力等級為1.6MPa;特殊型在選型和訂貨前應與工廠協商
◇壓力損失:7kPa-70kPa
◇介質溫度:標準型:-80℃-+200℃:PTFE:0℃-85℃
高溫型:最高可達300℃
◇介質粘度:DN15:η<5mPa.s(F15.1-F15.3)/η<30mPa.s(F15.4-F15.8)
DN25:η<250mPFa.s
DN50-DN150:η<300mPa.s
◇環境溫度:指針型-40℃-+120℃
◇連接形式:標準型:DIN2501標準法蘭
特殊型:由用戶指定的任意標準法蘭或螺紋
◇電纜接口:M20*1.5
◇供電電源:標準型:24VDC二線制4-20mA(10.8VDC-36VDC)
◇報警輸出:上限或下限瞬時流量報警,集電極開路輸出(最大100mA@30VDC內部阻抗100歐)
繼電器輸出(觸點容量1A@30VDC或0.25A@250VAC或0.5A@125VAC)
◇脈沖輸出:累積脈沖輸出,最小間隔50毫秒
◇液晶顯示:瞬時流量顯示數值范圍:0-50000
累計流量顯示數值范圍:0-99999999(可帶小數點)
◇防護等級:IP65
◇防爆標志:本安型iaⅡCT5;隔爆型dⅡBT6
|